Urban domestic sewage mainly originates from daily residential water use, including wastewater from washing, bathing, and kitchen and toilet drainage. It contains pollutants such as organic matter, nitrogen and phosphorus nutrients, suspended solids, and pathogenic microorganisms. The sewage has significant flow fluctuations (with peaks in the morning and evening), and its quality is of medium concentration, prone to putrefaction and blackening. If discharged without treatment, it can lead to eutrophication, black and odorous water bodies, and the spread of diseases. Modern sewage treatment employs a combination of "physical + biological + chemical" processes, such as bar screens for interception, activated sludge degradation, and disinfection, to ensure that the treated water meets standards.

Process Flow Example

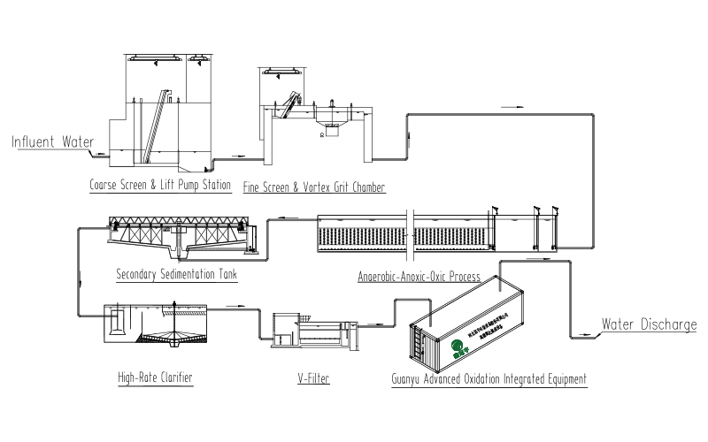
Process Flow Description for Urban Domestic Sewage Treatment
(1) Preliminary treatment: Sewage first passes through a coarse bar screen to remove large particulate debris, then enters a fine bar screen and vortex grit chamber via a lift pump to further intercept fine suspended solids and separate sand and gravel.
(2) Biological treatment: The A/A/O process (anaerobic-anoxic-aerobic) is used for simultaneous nitrogen removal and phosphorus elimination, utilizing microorganisms to degrade organic matter.
(3) Advanced treatment: Sewage enters a sedimentation tank to separate activated sludge, then undergoes enhanced coagulation and sedimentation for phosphorus removal in a high-density sedimentation tank, followed by filtration of fine suspended solids through a V-type filter.
(4) Advanced oxidation and disinfection: The Crown advanced oxidation integrated equipment is used to degrade refractory organic substances, and finally, disinfection is carried out to kill pathogens before the treated water is discharged up to standard.
Future Trends
Stricter standards: Discharge standards are being upgraded from Class I B to Class I A, with some regions (such as sensitive watersheds) implementing even stricter standards equivalent to Class IV or III surface water, enhancing control over indicators such as COD, ammonia nitrogen, total phosphorus, and total nitrogen.
Emerging pollutant control: Monitoring and limit requirements for emerging pollutants such as antibiotics, microplastics, and PPCPs (pharmaceuticals and personal care products) are being added, driving the application of advanced treatment technologies like ozone oxidation and activated carbon adsorption.
Resource-oriented approach: Encouraging reclaimed water reuse (for industrial, landscape, and municipal purposes) and promoting resource recovery technologies such as phosphorus recovery and biogas energy utilization to reduce carbon emissions.
As regulations on discharge indicators become increasingly stringent, conventional treatment methods are finding it difficult to meet the requirements. Therefore, the application of advanced oxidation processes for the final treatment of refractory organic substances has become imperative.
Core Technology
Multi-stage Photo-Ozone Catalytic Oxidation Process (MPOCO)
Efficient degradation of pollutants (broad-spectrum & deep oxidation)
(1) Synergistic free radical generation: UV/TiO2 generates hydroxyl radicals (·OH) and photogenerated hole-electron pairs (h+/e−). UV/O3 directly produces ·OH through ozone photolysis (λ<310 nm) while also stimulating more reactive oxygen species (such as ·O2−). Catalytic oxidation of O3 (e.g., with supported catalysts) further decomposes ozone to enhance the yield of ·OH. Effect: The removal rate of refractory organic substances (such as antibiotics, PFAS, dye wastewater) is increased by 30% to 50% compared to single AOP.
(2) Broad-spectrum applicability:
Capable of treating high-concentration organic wastewater, toxic industrial wastewater (such as from pharmaceutical and petrochemical industries), and trace pollutants (such as endocrine disruptors).
Significant degradation effect on refractory pollutants (such as chlorinated organic compounds, polycyclic aromatic hydrocarbons).
High energy utilization rate (reducing operating costs)
(1) Multiple uses of ultraviolet light: The same UV source (e.g., 185nm UV) simultaneously drives TiO2 photocatalysis and O3 photolysis, reducing equipment redundancy. The electrons generated from photocatalysis can suppress electron-hole recombination, enhancing quantum efficiency.
(2) Efficient activation of ozone:
The ozone utilization rate in traditional ozone oxidation (O3 alone) is only 20% to 40%, while it can reach 70% with coupled catalysis (through surface catalytic decomposition). Cost comparison: 15% to 30% lower energy consumption than ozone oxidation alone.
Strong anti-interference ability (adaptability to complex water quality)
(1) Wide pH adaptability:
UV/TiO2 is efficient under acidic to neutral conditions, while O3 catalysis is more optimal under alkaline conditions. The combination covers pH 2 to 10. Resistance to inorganic ion interference:
Traditional ·OH is easily quenched by HCO3− and Cl−, but the three-tier system reduces the impact through multiple oxidation pathways (direct ozone oxidation, surface reactions).
(2) Handling high-turbidity wastewater:
The shading of UV by suspended solids can be alleviated through fluidized bed catalytic reactors or dynamic optical path designs.
Reduced secondary pollution (green chemistry characteristics)
(1) No sludge generation:
Compared to the Fenton process, there is no need to add iron salts, avoiding the disposal problem of iron sludge.
(2) Controllable ozone residuals:
The final catalytic unit can decompose residual ozone, preventing excess ozone in the exhaust gas (<0.1 ppm).
(3) High degree of mineralization:
Organic substances are thoroughly mineralized into CO2 + H2O, reducing intermediate toxic products (such as a 50% reduction in bromate formation compared to single O3).
Modular & Scalable (engineering advantages)
(1) Flexible process combination
The UV/O3 ratio or catalyst type (e.g., modified TiO2, MnOx/Al2O3 catalysis) can be adjusted according to water quality.
(2) Compatibility with existing facilities
It can be integrated into the "biochemical + AOP" process chain as a deep treatment unit.
(3) Automated control
Real-time adjustment of UV intensity and ozone dosage through online ORP/ozone sensors. Comparison with other AOP technologies
| Technical Indicator | MPOCO | Single UV/O₃ | Single Photocatalytic TiO₂ | Traditional Fenton Method |
| OH Yield | Extremely high (multiple pathways) | Medium | Low (prone to recombination) | High (but limited by pH) |
| Operating Cost | Medium-low (energy sharing) | High (O₃ power consumption) | Low | Medium (chemical cost) |
| Resistance to Water Quality Fluctuations | Strong | Weak (affected by COD) | Weak (requires low turbidity) | Weak (requires acidic pH) |
| Secondary Pollution Risk | Extremely low | Medium (O₃ residual) | None | High (iron sludge) |