Scale formation in industrial recirculating water refers to the precipitation of salts such as calcium and magnesium from the water due to increased temperature, changes in pH, or evaporation concentration, resulting in the formation of hard deposits on the surfaces of pipes, heat exchangers, and other equipment. Common types of scale include calcium carbonate, calcium sulfate, and silicates. Scale buildup can reduce heat transfer efficiency, increase energy consumption, and even clog pipes, affecting the normal operation of the system. Control methods include water softening, adding scale inhibitors, adjusting pH levels, and regular descaling.

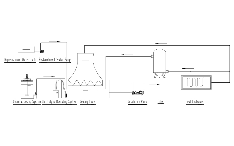
Process Flow Example

Process Flow Description of Urban Domestic Wastewater Treatment
(1) The recirculation pump draws cooling water from the makeup water pool, pressurizes it, and then transports it to the heat exchanger;
(2) In the heat exchanger, the cooling water absorbs heat from the process equipment, causing its temperature to rise;
(3) The heated water then enters the cooling tower, where it is cooled through evaporation or air cooling;
(4) The cooled water flows back to the makeup water pool, forming a recirculating loop;
(5) The bypass filtration system (including the filter) continuously purifies a portion of the recirculating water, removing suspended solids;
(6) The chemical feeding device adds corrosion inhibitors, scale inhibitors, and other chemicals to the system to prevent corrosion and scaling;
(7) Tap water is used as a supplementary water source to regularly replenish the water lost due to evaporation or discharge.
Hazards of Industrial Recirculating Water Scaling
1. Reduces heat transfer efficiency and increases energy consumption. The thermal conductivity of scale is only 1% to 10% that of metal, and scaling can significantly reduce the heat transfer efficiency of heat exchangers.
2. Clogs pipes and affects water flow. The deposition of scale can reduce the effective cross-sectional area of pipes, increase water flow resistance, and decrease the recirculating water volume.
3. Accelerates equipment corrosion and shortens service life. Under the scale layer, oxygen concentration cells can easily form, leading to electrochemical corrosion (such as pitting and ulcer corrosion). Microorganisms (such as sulfate-reducing bacteria) can proliferate under the scale layer, exacerbating microbial corrosion (MIC).
4. Increases maintenance costs and affects production continuity. When scaling is severe, it is necessary to shut down the machine for cleaning or equipment replacement, causing production interruptions. Chemical cleaning or mechanical descaling is costly and may damage the base material of the equipment.
Core Technology
Electrochemical Scale Removal
(1) Core Electrolysis Technology
Adopting high-efficient electrode materials (such as titanium-plated platinum, iridium-tantalum coatings) to enhance electrolysis efficiency and extend service life. A patented electrolysis cell design optimizes water flow distribution and increases ion removal rate.
(2) Customized Solutions
Providing targeted electrolysis parameter design based on industry (power, petrochemical, metallurgy, etc.) and water quality characteristics. It can be integrated with multi-functional modules such as filtration and sterilization to form a comprehensive water treatment system.
(3) Intelligent Monitoring and Big Data Analysis
Equipped with IoT sensors to monitor water quality in real-time (conductivity, pH, hardness, etc.). AI algorithms predict scaling trends and dynamically adjust operating strategies.
(4) Successful Cases and Industry Experience
Mature applications in fields such as thermal power, chemical industry, and data centers, with customer cases verifying energy-saving effects.
Offering technical training and after-sales support to ensure long-term stable operation.
(5) Cost Advantage
Compared with traditional chemical dosing, long-term use can reduce water treatment costs by 30% to 50%. Some companies provide Energy Management Contracting (EMC) models to reduce initial investment for customers. Electrochemical scale removal technology, with its core advantages of high efficiency, environmental friendliness, and intelligence, combined with the company's customized design, intelligent monitoring, and industry experience, can provide a sustainable zero-chemical pollution solution for industrial recirculating water systems, helping to reduce costs and improve efficiency.